МО, Химки, Покровская улица, строение 1
Помещения свободного назначения
офис, сфера услуг, салон, детский клуб, медицинский центр
АРЕНДА на индивидуальных условиях
Парковка
Все центральные коммуникации
Все необходимое в одном месте
ОФИСНО-ТОРГОВЫЙ ЦЕНТР
УДОБНАЯ ТРАНСПОРТНАЯ ДОСТУПНОСТЬ
11 км от МКАД
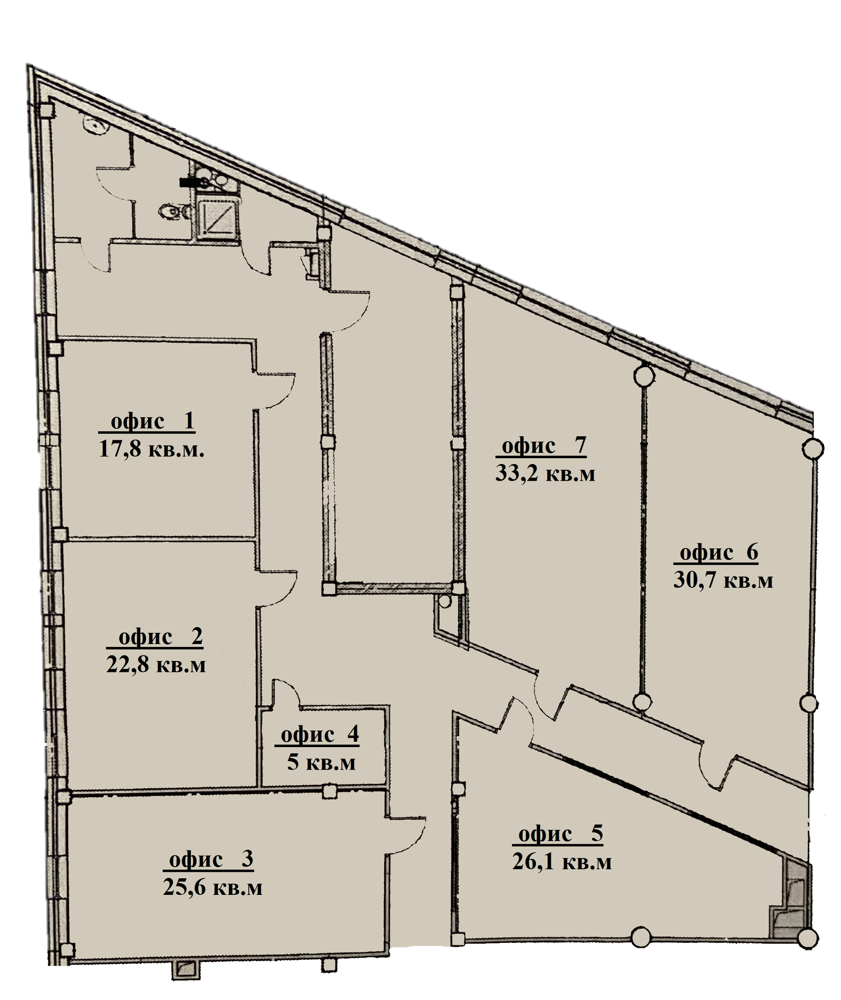
Общая площадь______от 22 кв.м.
Этажи__________________________3
Размещение__в нежилом доме
Назначение_____коммерческие
_____________________помещения

Аренда помещений свободного назначения
или оставьте контактные данные, мы с Вами свяжемся
Ваш персональный менеджер
ИНФОРМАЦИЯ
Юридический адрес предоставляется
Адрес:
Московская область, г. Химки, квартал Международный, улица Покровская, строение 1
ИНФОРМАЦИЯ ОБ ОБЪЕКТЕ
Предлагаем в аренду коммерческие помещения, расположенные в торгово-офисном центре на 3 этаже.
Свободное назначение.
Объект расположен в активно развивающейся деловой части города Химки и обладает отличной пешеходной и транспортной доступностью.
Имеется отдельный вход с улицы.
Возможны самые разнообразные варианты использования для любого вида деятельности - там может расположиться интернет-магазин или уютный офис, СПА-салон или кафе, медицинский кабинет или детский развивающий центр....
Подробности
  • Удобная транспортная доступность
  • Отдельный вход с улицы.
  • Центральное отопление, водоснабжение и водоотведение.
  • Помещение со свежим ремонтом.
Наши преимущества
Готовы рассмотреть любые Ваши предложения.

Мы - собственники объекта, поэтому предлагаем аренду без переплат агентам и без комиссии - оптимальное сочетание цены и качества.

Индивидуальный подход к каждому арендатору.
множество вариантов
от 10 000 руб/месяц
Наши контакты
Наш телефон
+79215888886

Наша почта
bvcrenta2@mail.ru

Адрес объекта
Московская обл., г. Химки, квартал Международный, улица Покровская, строение 1
СВЯЖИТЕСЬ С НАМИ
Оставьте контакты — персональный менеджер ответит на все вопросы и подготовит для вас индивидуальное предложение.
Нажимая ОТПРАВИТЬ, вы соглашаетесь с политикой конфиденциальности сайта и на обработку персональных данных
Made on
Tilda